Emma’s hotdog
城市裡,也可以有一片森林。延續 Emma's Hotdog 日本本店與自然共生的精神,我們在台灣,重新詮釋對「城市綠洲」的想像。
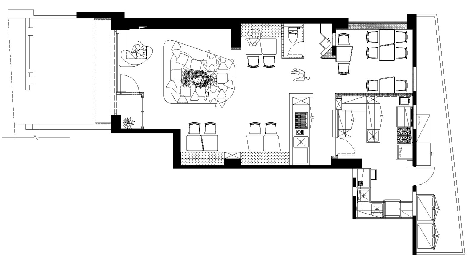
入口牆面以大地色系與自然質材揭開序幕,象徵「土壤」與「樹木」的原始狀態,讓人從踏入空間的第一刻,便逐漸抽離城市的節奏。隨著動線向內延伸,植栽與仿天井光膜交織出如林間灑落的光影層次,讓光線、綠意與動線層層呼應,勾勒出一段由城市漫步森林的過渡體驗。在喧囂之中,構築一個讓人久待的角落。
In the city, a forest can still exist. Inspired by the spirit of harmony with nature at Emma's Hotdog’s original store in Japan, the design reinterprets the idea of an urban oasis within the context of Taiwan.
The entrance wall introduces the space with earthy tones and natural materials, evoking the primal imagery of soil and trees. From the moment visitors step inside, the pace of the city begins to fade. As the spatial sequence unfolds, greenery and a skylight-inspired luminous ceiling create layered light and shadow reminiscent of sunlight filtering through a forest canopy. Through the interplay of light, greenery, and circulation, the interior gradually transitions from city to forest—forming a quiet refuge within the urban bustle, a place that invites visitors to slow down and linger.
City Taoyuan, Taiwan
Year 2026
Size 28.6 Ping
Photographer Hey ! Cheese
